UL 50E 는 전기 장비 인클로저의 환경 고려 사항에 대한 UL 인증 표준입니다. 이 표준은 환경을 고려한 전기 장비에 대한 인클로저의 추가 환경 구조 및 성능 요구 사항을 다룹니다. 이 표준은 미국, 멕시코 및 캐나다 시장에 적용됩니다.
UL 50E 표준은 캐나다 전기 코드 파트 I CSA C22.1 및 국가 전기 코드 NFPA 70 에 따라 위험하지 않은 위치에 설치 및 사용되는 전기 장비의 인클로저에 적용됩니다. 멕시코 전기 UL 50E 샤워 NOM-001-SEDE 규정은 다음과 같습니다:
1) 실내 장소, 유형 1, 2, 5, 12, 12K 및 13 에 대한 인클로저;
2) 실내 또는 실외 위치, 유형 3, 3R, 3S, 4, 4X, 6 및 6P.
UL 50E 는 인클로저의 추가적인 환경 구조 및 성능 요건을 커버한다. 인클로저에 대한 일반적인 요구 사항은 표준 CSA C22.2 No. 94.1, UL 50 및 NMX-J-235/1-ANCE 또는 최종 사용 제품에 대한이 표준과 함께 포함되어 있습니다.

UL 50E 테스트에는 드립 테스트, 비 테스트, 먼지 테스트, 외부 착빙 테스트, 호스 테스트, 실내 부식 방지, 실외 부식 방지, 침지 테스트, 압력 테스트, 오일 제외 테스트, 세탁기 테스트, 로드 엔트리 테스트, 오정렬 테스트, 물 노출 및 침수 테스트. 이 기사에서는 UL 50E 샤워를 소개하는 UL 50E 표준의 물 노출 및 침수 테스트에 대해서만 설명합니다.
의 주요 기능UL 50E 샤워시뮬레이션 된 비오는 날씨 조건에서 전자, 전기 제품, 램프, 전기 캐비닛, 전기 부품 및 기타 제품의 물리적 및 기타 관련 특성을 테스트하는 것입니다. 테스트 후 제품의 설계, 개선, 검증 및 공장 검사를 용이하게하기 위해 제품의 성능이 요구 사항을 충족하는지 여부를 확인하는 검증을 통해.

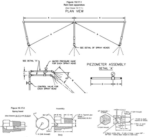
UL 50E 샤워는 주로 크기, 속도, 강우, 강우 각도 등 자연 강우량의 다양한 조건을 시뮬레이션하여 테스트 된 제품을 살포합니다.
UL 50E 샤워는 일반적으로 다음과 같이 구성됩니다.
1. 물 공급 시스템: 깨끗하고 안정적인 수원을 제공하고 UL 50E 샤워를 조절하는 압력을 통해 수압과 물의 흐름 속도를 제어합니다.
2. 워터 스프레이 시스템: 빗방울의 분포 및 특성이 표준 요구 사항을 충족 할 수 있도록 신중하게 설계된 스프링클러 헤드로 구성됩니다.
3. 제어 시스템: 비 시간, 강우 등과 같은 비 테스트의 매개 변수를 설정하고 제어하고 테스트 데이터의 실시간 모니터링 및 기록을 제어하는 데 사용됩니다.

직장에서 물은 급수 시스템을 통해 노즐로 전달 된 다음 특정 방식으로 분사되어 시뮬레이션 된 강우를 형성합니다. 테스트 된 제품은 레인 룸에서 고정 된 UL 50E 샤워 실에 놓고 빗물을 뿌립니다. 다른 매개 변수를 제어함으로써 다른 강도와 강우량을 시뮬레이션 할 수 있습니다.
1. 노즐 및 사출 각도의 수, 사출 각도는 45 ° 입니다.
2. 물 분무 압력, 일반적으로 34.5Kpa 또는 다른 시험 요구 사항을 충족시키기 위해 조정 가능.
3. 노즐 물 기둥 접합 높이는 조절 가능하며 범위는 300mm ~ 1200mm 또는 1000mm ~ 2000mm 일 수 있습니다.
4. 시험 시간은 조정가능하며 0 에서 99999.9 분까지 놓일 수 있습니다.
5. 지지 재료는 알루미늄 재료 또는 산업용 알루미늄 프로파일로 형성 될 수 있으며, 베이스에는 범용 벨트 브레이크 캐스터가 장착되어 있습니다.
6. 구조 및 기능: UL 50E 샤워에는 스프링클러 헤드, 지지대, 압력 게이지 등과 같은 구성 요소가 포함될 수 있습니다. 스프링클러 헤드의 간격 및 구조 설계는 특정 UL 표준 그래픽 요구 사항을 준수해야합니다.
| 모델 | R-UL020 | |
전반적인 차원 (mm) | 800*1500*3800mm | |
스프레이 장치의 높이 조정 범위 | 1000-3600mm (조정가능한) | |
매개 변수 | 스프레이 헤드의 수 | 3 스프레이 헤드 |
노즐 간격 | 710mm | |
스프레이 구멍 직경 | Φ5mm | |
수압 | 34.5Kpa | |
샘플 플랫폼 크기 | ||
샘플 플랫폼 부하 | 100 Kgs | |
| ||
| ||
LIBUL 50E 샤워위의 기술 매개 변수가 우수합니다.
A. 빗방울 분포의 균일 성이 산업 표준보다 높다는 것을 보장하기 위해 고급 노즐 제조 공정을 사용하여;
B. 독특한 압력 조정 시스템은 설정 압력을 정확하게 유지할 수있을뿐만 아니라 테스트 안정성을 보장하기 위해 압력 변동의 자동 보상 기능이 있습니다.
C. 노즐 높이 조정은 전기 제어, 편리한 작동 및 높은 정밀도를 채택합니다.
D. 시험 시간 통제는 과학적인 연구 수준 시험을 위한 강한 보장을 제공하는 0.1 분으로 정확합니다;
E. 지원 구조는 안정성을 보장하고 운송 및 설치에 편리한 장비의 전반적인 무게를 줄이기 위해 강화되었습니다.
F. 독특한 지능형 제어 시스템은 원격 모니터링 및 데이터 기록을 실현하여 테스트 효율성과 관리 편의성을 크게 향상시킵니다.
1. 전자 및 전기 제품
휴대 전화, 컴퓨터, 태블릿, 충전기, 전기 하우징 등을 포함하여 이러한 제품이 습한 환경에서 정상적으로 작동 할 수 있도록 단락을 방지하기 위해, 물로 인한 실패 및 기타 문제.
2. 자동차 부품
자동차 헤드 라이트, 미등, 대시 보드, 센서, 전자 제어 장치 및 기타 구성 요소는 다양한 기상 조건에 적응하기 위해 우수한 방수 성능이 필요합니다.
3. 옥외 장비
가로등, 감시 카메라, 통신 장비, 태양 전지 패널 및 기타 야외 장비는 종종 비 환경에 노출되어 비 테스트를 통해 보호 능력을 확인할 수 있습니다.
4. 항공 우주
항공기 부품, 우주선 하우징 등은 매우 높은 내수성이 필요하며 UL 50E 샤워는 혹독한 기상 조건에서 정상적인 작동을 유지하는 데 도움이됩니다.
여기를 참조하십시오, 나는 당신이 UL 50E 샤워, 당신이 제품의 방수 성능 테스트에 대해 걱정한다면, LIB UL 50E 샤워가 당신의 이상적인 선택이 될 것입니다. 정확한 기술 매개 변수, 신뢰할 수있는 성능 및 우수한 브랜드 평판은 제품의 품질에 대한 확실한 보증을 제공 할 수 있습니다. 오늘 저희에게 연락하십시오Inquiry@libtestchamber.com더 많은 제품 세부 사항 및 특별 제안!
English
русский
français
العربية
Deutsch
Español
한국어
italiano
tiếng việt
ไทย
Indonesia
